Používáme cookies k optimalizaci našich webových stránek a našich služeb. Další informace o cookies najdete zde.

Nastavení


R E Z E R V A C E ! ! ! Byt  1+1   s možností úpravy na 2+kk, cihla, sklep, Pardubice – Železničního pluku

R E Z E R V A C E ! ! ! Byt 1+1 s možností úpravy na 2+kk, cihla, sklep, Pardubice – Železničního pluku

Popis nemovitosti

R E Z E R V A C E ! ! !

Byt  1+1   s možností  úpravy  na  2+kk,  cihla,  sklep,  Pardubice – Železničního pluku

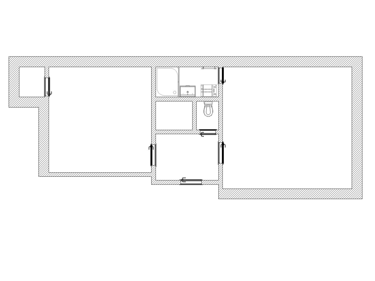
Hledáte byt, který si můžete přetvořit podle svých představ – pro sebe, nebo jako investici? Tento byt o velikosti cca 45 m² v cihlovém domě na ulici Železničního pluku v Pardubicích nabízí přesně takovou příležitost.

Dispozice 1+1 umožňuje úpravu na 2+kk. Byt se nachází v přízemí, má velký sklep (cca 6 m²) a praktickou komoru přímo v bytě. Koupelna je vybavena vanou, toaleta je samostatná. Topení zajišťují plynová kamna WAW, ohřev vody bojler. Provozní náklady jsou přitom velmi nízké – pouhých 1 600 Kč měsíčně + elektřina a plyn.

Nemovitost je v původním, udržovaném stavu, připravená na rekonstrukci dle Vašeho vkusu. Díky tomu získáte možnost vytvořit si příjemné bydlení s vlastním charakterem nebo zhodnotit investici do nájemního bytu.

V galerii najdete i vizualizaci jak by mohly vypadat varianty bytu po rekonstrukci 1+1 nebo 2+kk...

Ulice Železničního pluku leží v širším centru Pardubic – jen pár minut od hlavního nádraží i samotného srdce města. V okolí najdete obchody, kavárny, služby, školy i zastávky MHD. Lokalita tak nabízí skvělou dostupnost pro každodenní život i stabilní poptávku po pronájmu.

Byt je v osobním vlastnictví a díky svým parametrům má potenciál stát se buď ideálním startovacím bydlením, nebo jistou investicí s dlouhodobým výnosem.

➡️ Napište si o termín prohlídky – domluvíme termín a byt Vám osobně představím.

Roman Kasalý

Jmenuji se Roman Kasalý a realitám se aktivně věnuji od roku 2004. Za více než 22 let praxe jsem pomohl stovkám klientů projít často složitým realitním procesem s klidem a jistotou. Po celou dobu spolupracuji s EVROPA realitní kanceláří, kde stavím na silném zázemí a profesionálním přístupu.

Jsem certifikovaný makléř – expert profesionál, po letech praxe jsem v roce 2020 úspěšně složil i státní zkoušku podle nového realitního zákona a v roce 2025 dokončil studium MBA – Reality. Odbornost považuji za základ důvěry, proto své znalosti neustále rozvíjím a sleduji moderní trendy i technologie v realitním marketingu.

Opakovaně jsem členem VIP klubu nejlepších makléřů a uspěl jsem také v soutěži Realiťák roku. Specializuji se především na prodej nemovitostí a zakládám si na osobním přístupu, dlouhodobých vztazích a doporučeních klientů.

Rád budu vaším partnerem a průvodcem na cestě k úspěšnému a klidnému realitnímu obchodu.


Roman Kasalý

Kontaktní formulář

Stáhnout PDF